Mieszkania
Galeria

Opis inwestycji
Stan "pod klucz"

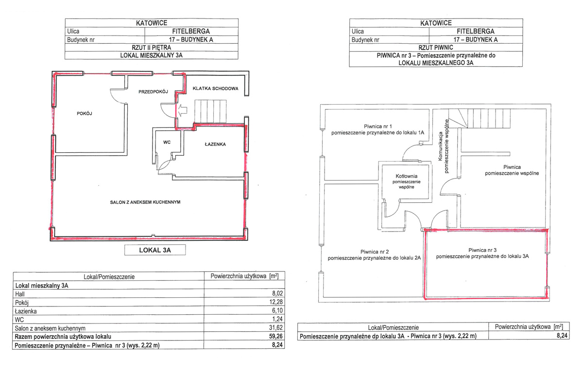
Rzut mieszkania

Mieszkanie Nr.3
Kliknij aby powiększyć

Galeria

3A-01 3A-02 3A-03 3A-04 3A-05 3A-06 3A-07 3A-08 3A-09 3A-10 3A-11

Pobierz

Pdf Pobierz ulotkę
Powierzchnia 59,26m²
Cena 439 000 PLN
Cena za m²: 7408 PLN / m²
Kom. lokatorska Płatna dodatkowo 12 000,00
Miejsce postojowe (opcjonalnie) Płatne dodatkowo 12 000,00
Wszystkie ceny brutto!
Liczba pokoi: 2
Piętro: Drugie
Typ budynku: Dom wielorodzinny
Liczba pięter: 2
Materiał budowy: cegła
Rok budowy: 1960
Stan nieruchomości: "pod klucz"
Wysokość pomieszczeń: 250 cm
Typ kuchni: otwarta
Czy łazienka z WC: osobno
Ogrzewanie: gazowe
Miejsca parkingowe: na ulicy
Winda: Nie
Liczba poziomów mieszkania: 1
Balkon: Nie
Domofon: Tak, wideodomofon
   
Mieszkanie dwupokojowe położone na drugim piętrze z kuchnią wraz z jadalnią otwartą na salon, łazienką oraz WC osobno, znajduje się w domu wielorodzinnym z lat 60-tych który został gruntownie zmodernizowany.
   
Budynek posiada nowe instalacje wod-kan, C.O., elektryczna, wideodomofon, oraz komórkę lokatorską w piwnicy(dodatkowo płatne)
   
Ogrzewanie centralne z pieca gazowego Beretta w kotłowni w piwnicy, (istnieje możliwość rozliczenia na mieszkanie)
   
Mieszkanie rozkładowe, posiada nowe wymienione okna wychodzące na wschód oraz zachód klatka schodowa wykończona, terakota wysokiej klasy, balustrady stal nierdzewna. Drzwi wejściowe do mieszkania Porta Agat Plus
   
Mieszkanie sprzedawane jest w standardzie deweloperskim bez podłóg i białego montażu
   
Zwalniane od: maj 2014
Forma własności: własność